PARQUE OLIMPICO - GOVERNADOR VALADARES - MG
Detalhes do imóvel
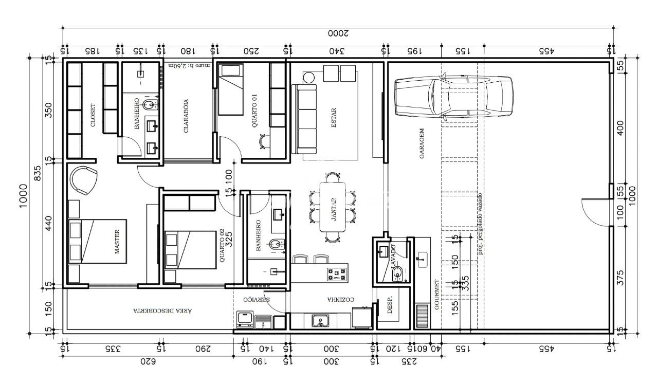
*CASA NOVA, CONSTRUÍDA EM LOTE INTEIRO (COM 200,00 M², SENDO 10,00 MTS DE FRENTE X 20,00 MTS NAS LATERAIS)
*DESCRIÇÃO: 1 SUÍTE COM CLOSET + 2 QUARTOS, CLARABÓIA, BANHEIRO SOCIAL, SALA DE ESTAR/JANTAR, COZINHA COM DESPENSA, LAVANDERIA COM ÁREA EXTERNA DESCOBERTA ANEXA, ÁREA GOURMET COM CHURRASQUEIRA E 1 LAVABO, PISCINA COM HIDRO E ILUMINAÇÕES EM LED, GARAGEM PARA 2 CARROS
*CASA COM TUBULAÇÕES PRÓPRIAS PARA INSTALAÇÃO DE ENERGIA FOTOVOLTAICA
CARACTERÍSTICAS
-
Area de Lazer Sim
-
Portaria 24 horas Não
-
Numero Elevador 0
-
Valor IPTU R$ 0,00
Comodidades
- Área de Serviço
- Closet
- Churrasqueira
- Salas
- Lavabo
- Hidromassagem
- Piscina
- Despensa
- Interfone
- Portao eletrônico
- Água individual




















